

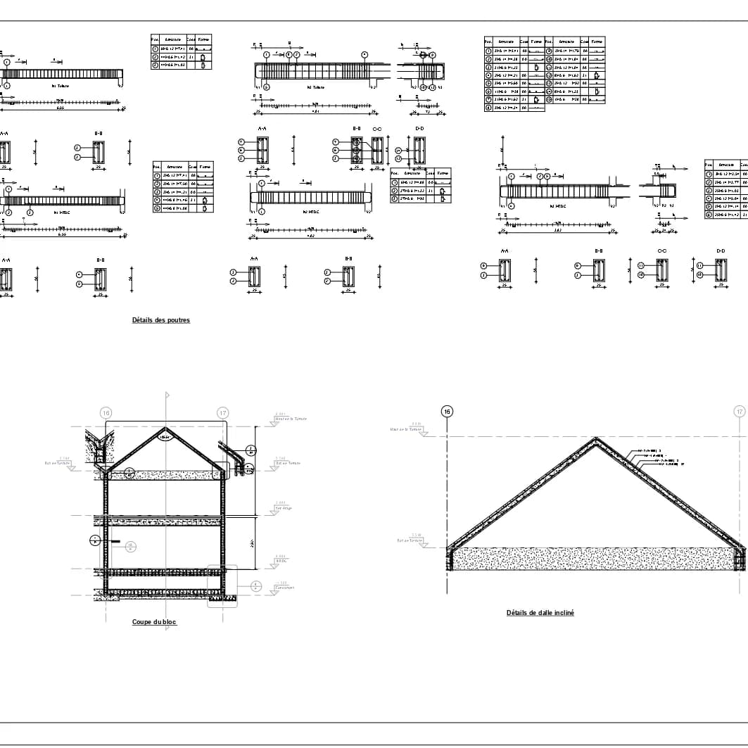
Structure béton – Dalle inclinée
Ce projet présente une structure porteuse en béton armé, conçue pour un bâtiment d’hébergement en colonie de vacances. Elle se compose de poteaux rectangulaires, voiles de contreventement, et d’une dalle inclinée assurant à la fois la rigidité globale et l’évacuation naturelle des eaux. Le tout est modélisé avec un niveau de détail LOD 300, garanti





